Freiburg im Breisgau
Sutter Medizintechnik GmbH
2015 – 2017
Industrie
Abgeschlossen
Leistungsphase 1 – 8
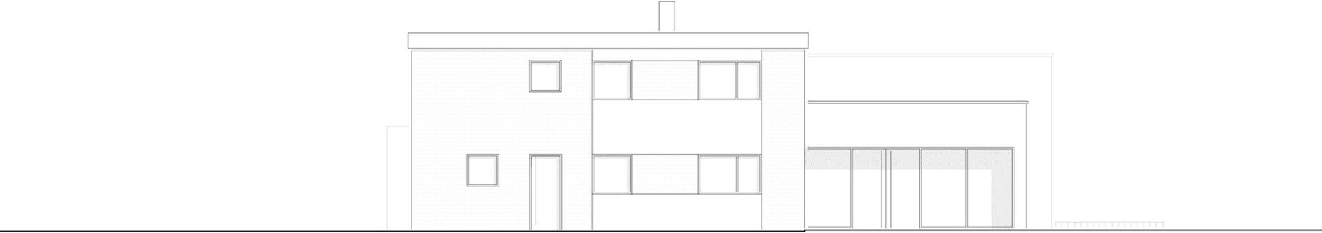
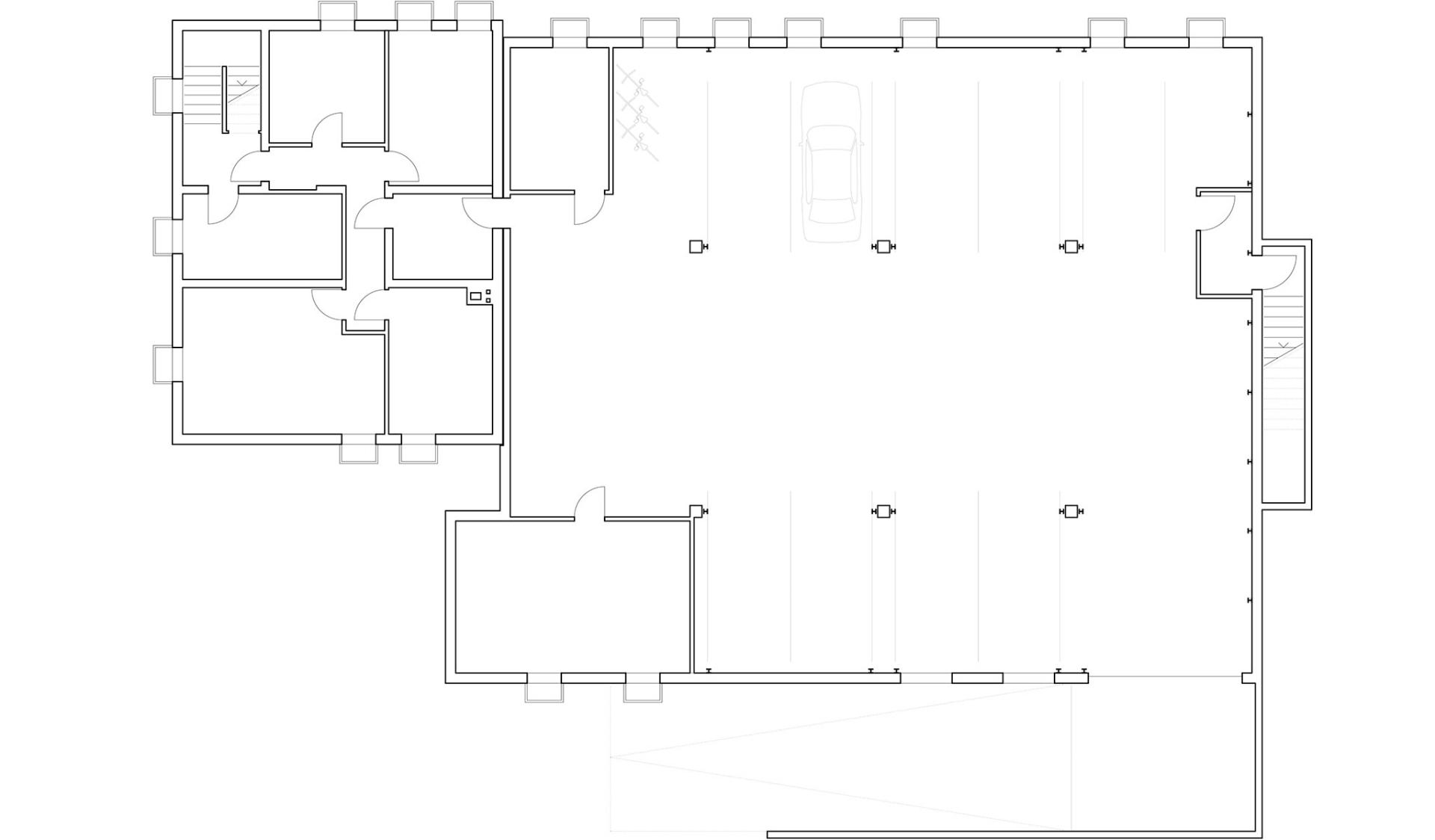
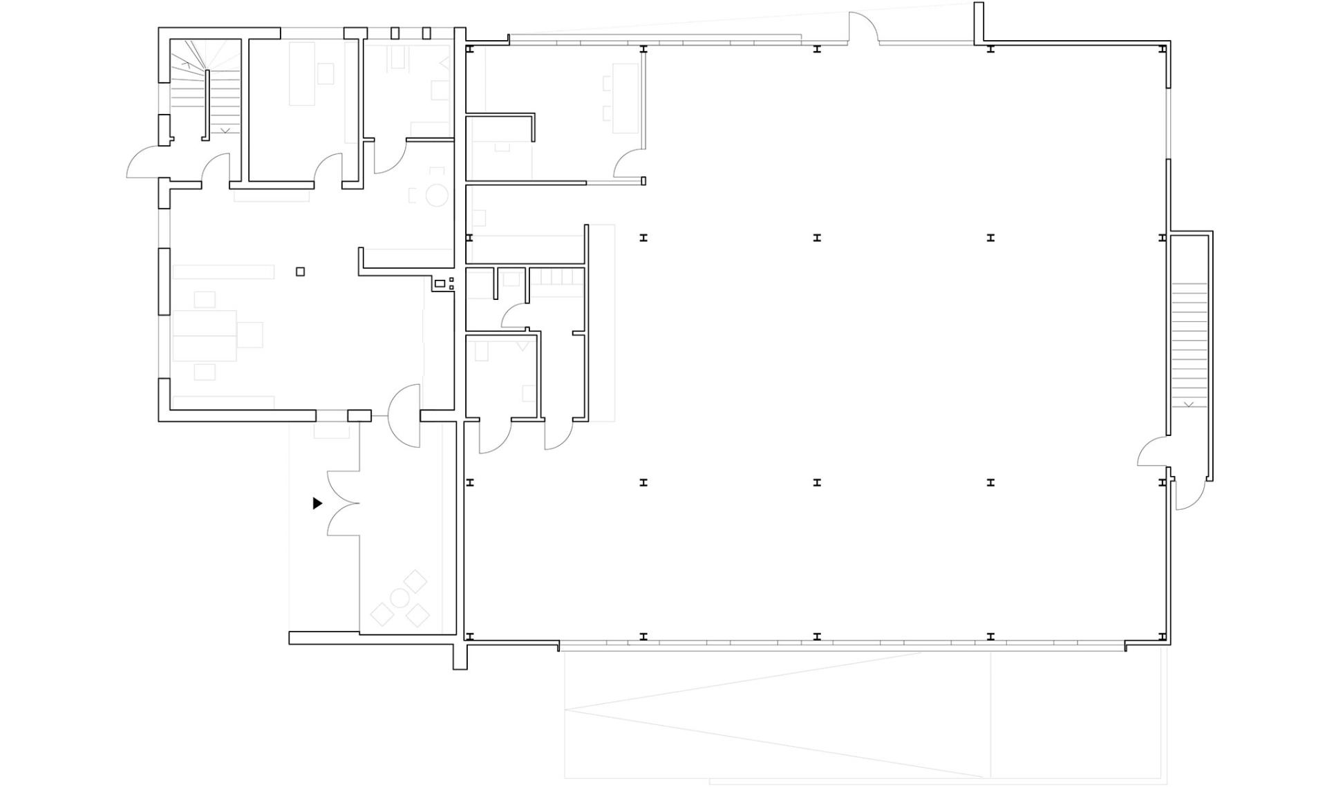
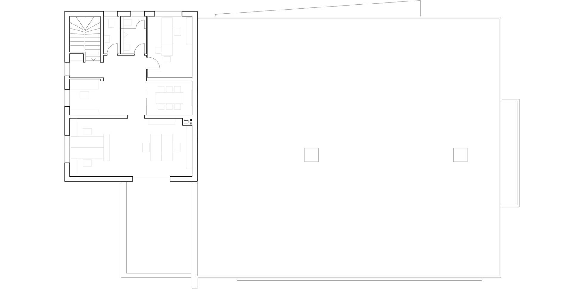
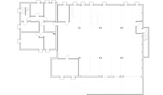
Die Erweiterung der Produktionsstätte für die Firma Sutter Medizintechnik GmbH wurde als Stahlkonstruktion auf dem bestehenden Kellergeschoss eines Gewerbebaus aus den 1970er Jahren errichtet. Die Produktionsfläche des mittelständischen Unternehmens konnte somit um ca. 400 qm erweitert werden.
Im Zuge der Baumaßnahme wurde der bestehende Keller entkernt, statisch aufgerüstet und zu einer Tiefgarage für Mitarbeiter ausgebaut. Der angrenzende, massive Bürobau aus den 1970er Jahren wurde saniert und durch den Anbau eines hellen Eingangsbereiches aufgewertet. Bei der Planung des Projektes hatten sich Bauherrschaft und Planer bewusst dazu entschieden, die nutzbare Gebäudesubstanz (Stahlbeton und zweischaliges Mauerwerk) weitgehend zu erhalten, um so den Gesamt- Energieaufwand für die Baumaßnahme möglichst gering zu halten.













